Die Fresh Zone Schublade ist ca. 2°C kälter als die im Kühlschrank-Innenraum eingestellte Temperatur und bietet eine optimale Lagertemperatur für Fisch und Fleisch.

Steel Genesi 100, Rangecooker, Farbe Anthrazit, 100 cm, Combisteam-Backofen, 4 Gasbrenner, G10SF-4TAN, mit 5 Jahren Garantie!
INKLUSIVE 5 JAHRE GARANTIE* (für die Länder Deutschland, Dänemark, Tschechische Republik, Polen, Österreich, Frankreich, Luxemburg, Belgien, Niederlande und Schweiz)
Allgemeine Informationen
Kochfeld
Das Kochfeld ist aus einem Stück gegossen und ermöglicht somit eine einfache und schnelle Reinigung.
4 Gasbrenner aus Messing
1 x 1 kW Brenner
1 x 1,8 kW Brenner
1 x 3 kW Brenner
1 x 3,5 kW Brenner
1 Fry-Top Platte
- 1 x 2,4 kW Fry-Top Platte
Backofen Combisteam links:
Elektronischer Ofen mit Kurzzeitwecker, Programmierung der Gar- und Backzeiten, mit dreifacher Verglasung für eine "kalte" Ofentüre und zusätzlicher Dampffunktion bei Ober- / Unterhitze für ein professionelles Garen und Backen.
- Betriebsarten
- Abmessungen Garraum: 47 x 43 x 35 cm
- Inhalt: 70 Liter
Backofen Multifunktion rechts:
Elektronischer Ofen mit Kurzzeitwecker, Programmierung der Gar- und Backzeiten, mit dreifacher Verglasung für eine "kalte" Ofentüre und somit mehr Sicherheit und weniger Energieverlust.
Betriebsarten
Beleuchtung
Ober- und Unterhitze
Oberhitze
Unterhitze
Obergrill
- Abmessungen Garraum: 26 x 43 x 35 cm
- Inhalt: 39 Liter
Technische Hinweise / Daten
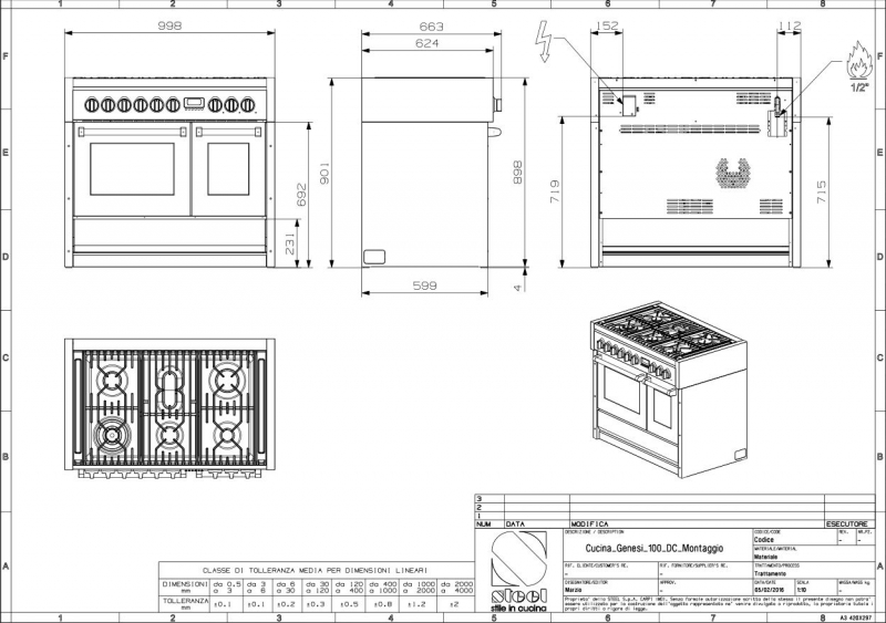
Breite: 998 mm
Höhe: 898 - 901 mm
Tiefe: 599 mm
Gesamtleistung Kochfelder: 9,3 kW
Elektrischeranschlusswert Backöfen: 6,3 kW
Gewicht: 127 kg
Im Lieferumfang enthalten:
Roste
Drehspieß
Teleskopführungen
Backbleche mit Griffen
Pizzabackstein
Wokring
Sonderzubehör (nicht im Lieferumfang enthalten - gesondert zu kaufen)
*Hinweis:
Wird in der Artikelbeschreibung eine Garantie ausgewiesen, bleiben Ihre gesetzlichen Gewährleistungsrechte uns gegenüber hiervon unberührt. Ist die Kaufsache mangelhaft, können Sie sich daher in jedem Fall an uns halten, unabhängig davon, ob der Garantiefall eintritt und ob die Garantie in Anspruch genommen wird oder nicht.
In den Ländern Dänemark, Tschechische Republik, Polen, Österreich, Frankreich, Luxemburg, Belgien, Niederlande und Schweiz werden im Schaden- oder Reparaturfall im Rahmen der 5 Jahres-Garantie die Kosten maximal in derjenigen Höhe übernommen, wie die Schadenhöhe oder die Reparaturkosten entstanden wären, wenn sie in Deutschland stattgefunden hätten.