Die Fresh Zone Schublade ist ca. 2°C kälter als die im Kühlschrank-Innenraum eingestellte Temperatur und bietet eine optimale Lagertemperatur für Fisch und Fleisch.

- für Unterschrank ab 50 cm zum Einbau von unten
- Material: Keramik
Die besondere Widerstandsfähigkeit der KeraDomo-Küchenkeramik, als Schwesterprodukt der Laborkeramik, macht sie zum idealen Material für alle Bereiche, die extremen Ansprüchen gewachsen sein müssen. Die hohe Materialdichte und Belastbarkeit verdankt das bei über 1.200°C gebrannte Feinsteinzeug den Erfahrungen des Unternehmens als Anbieter für anspruchsvolle Laborausstattung
- 1 Becken
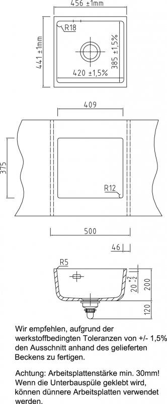
- diese Spüle ist nur als Unterbau Spüle geeignet (somit ausschließlich mit Arbeitsplatten aus Stein, Granit oder Glas kombinierbar); ein Einbau als Auflage- bzw. Einbau-Spüle oder der Einsatz als flächenbündige Spüle ist nicht möglich!
- Keine Hahnlochbohrung vorhanden (Bohrungen für Armatur/Excenter müssen in der Arbeitsplatte vorgesehen werden)
- Ausschnittsmaß in der Arbeitsplatte: 409 x 375 mm / R 12 mm
- Hohe Stoß-, Schlag- und Kratzfestigkeit
- Geschmacks- und geruchsneutral
- Chemikalienresistent gegen hausübliche Säuren und Laugen
- Hitze- und kältebeständig
- Lichtecht - kein Verblassen der Farben
- Farbe: Fango (matt)
Auszuwählende Optionen (bitte wählen Sie diese oben rechts, neben dem Artikelfoto aus):
- Option Oberfläche: Hier können Sie wählen, ob Sie das Spülbecken mit oder ohne der Oberflächen-Versiegelung Clean-Plus wünschen
- Option Ausstattung: "Ablaufgarnitur mit Handbetätigung", "Ablaufgarnitur mit Excenterbetätigung
Das Füllen und Ablaufen der Spüle wird über einen runden Drehknebel auf der Oberseite der Spüle vorgenommen. Dieser Knebel, Excenterbetätigung genannt, verschließt oder öffnet den Ablauf der Spüle, je nachdem in welche Richtung er gedreht wird. Der Griff in das Spülwasser entfällt somit.
" oder "Ablaufgarnitur mit Premium Excenterbetätigung (Drehknopf)": Hier können Sie wählen, ob Sie das Schließen und Öffnen des Wasserablaufes per Hand (Handbetätigung) oder komfortabler über einen runden, glänzenden Drehknebel auf der Oberseite der Spüle (Ablaufgarnitur mit Excenterbetätigung) bzw. einen versenkbaren Edelstahl Drehknopf (Ablaufgarnitur mit Premium ExcenterSystemceram Versenkbare Excenterbetätigung
betätigung) durchführen möchten.
Im Lieferumfang enthalten:
- Ablaufgarnitur mit Handbetätigung
- ohne Systemceram-CleanPlus
Kalk und Schmutz finden auf einer CleanPlus versiegelten Oberfläche keinen Halt. Werden alle Pflegehinweise beachtet, bleibt dieser besondere Oberflächenschutz lange erhalten. Zur Reinigung reichen Spülmittel, oder milde Essig- und Allzweckreiniger. Aggressive und scheuernde Reinigungsmittel können die CleanPlus-Eigenschaften zerstören und die Glasur zerkratzen.
-Versiegelung
Hinweis: ist auf der oben stehenden Produktabbildung auf der Spüle ein runder Drehknebel zu sehen, handelt es sich um die Version mit Excenter-Betätigung. Eine eventuell abgebildete Armatur gehört nicht zum Lieferumfang.
* Angaben zur Herstellergarantie
Der Hersteller gewährt deutschlandweit 5 Jahre Garantie auf den gelieferten Artikel Systemceram KeraDomo MERA 42 U. Treten während dieses Zeitraums Material- oder Herstellungsfehler auf, gewährt der Hersteller im Rahmen der Garantie eine der folgenden Leistungen nach seiner Wahl:
• Reparatur des Artikels Systemceram KeraDomo MERA 42 U oder
• Austausch gegen einen gleichwertigen oder neuen Artikel Systemceram KeraDomo MERA 42 U (ggf. auch ein Nachfolgemodell).
Bitte wenden Sie sich im Garantiefall an:
Systemceram GmbH & Co. KG
Berggarten 1
56427 Siersheim
Tel: +49 (0) 2623 / 600-10
Fax: +49 (0) 2623 / 600-790
Hinweis:
Ihre gesetzlichen Gewährleistungsrechte uns gegenüber bleiben hiervon unberührt. Ist die Kaufsache mangelhaft, können Sie sich daher in jedem Fall an uns halten, unabhängig davon, ob der Garantiefall eintritt und ob die Garantie in Anspruch genommen wird oder nicht.
Hinweis für Auslands- und Nachnahme-Bestellungen / Note for orders from other countries:
Aufgrund der Transport-Sensibilität dieses Artikels können wir Sendungen ins Ausland oder Bestellungen per Nachnahme nur auf einer Palette über eine Spedition vornehmen lassen. Wir bitten Sie, uns in diesem Falle vor Abgabe Ihrer Bestellung anzusprechen (Email: info@ascasa.de, Tel. +49 (0) 89 / 9616069-00).
Due to the transport-sensitivity of this article we can only make shipments abroad on a pallet via a trucking company. We ask you to contact us in this case before submitting your order (Email: info@ascasa.de, Tel. +49 (0) 89 / 9616069-00).